Vendita di immobili
In vendita
Splendido appartamento
2,5 locali di circa 66 m² di superficie abitabile
Con vista panoramica sul lago
1815 Clarens
CHF 720’000.–
Descrizione
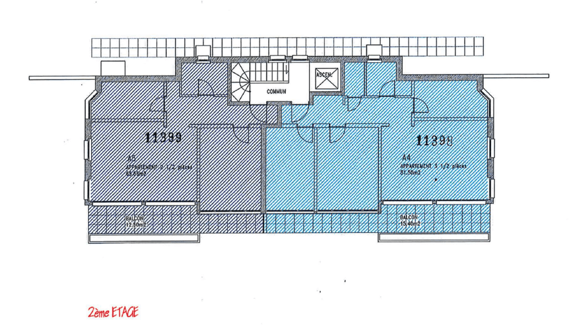
Questo splendido appartamento di 2,5 locali, con circa 66 m² di superficie abitabile e 12,5 m² di balcone, ti conquisterà per la sua luminosità e la sua posizione, con una vista panoramica sul Lago Lemano.
L’appartamento si trova in un quartiere residenziale a Clarens, nel pittoresco e ricercato comune di Montreux, in una strada senza uscita. La disposizione interna è stata studiata con cura per massimizzare lo spazio e la luce. La ristrutturazione del 2017 ha dato un tocco di modernità all’insieme con finiture eleganti.
L’appartamento è composto da un ingresso con 2 armadi a muro, una cucina completamente attrezzata e chiusa con dispensa e cantinetta per il vino, una camera da letto esposta a sud e un bagno con doccia a filo pavimento e WC. Una cantina e un posto auto in un parcheggio privato, accessibile dall’edificio, completano questa proprietà. L’appartamento è dotato di due condizionatori per rinfrescare le stanze durante i periodi più caldi.
Caratteristiche
Comune: Clarens – Montreux
Anno di costruzione: 1998
Ultima ristrutturazione: 2017
Tipo di riscaldamento: Riscaldamento a gas
Impianto di riscaldamento: A pavimento
Garage: 1 posto auto in un parcheggio sotterraneo accessibile dall’edificio (CHF 40’000.— in aggiunta al prezzo di vendita)
Spese condominiali: CHF 682.—al mese
Vista aperta dal balcone sul Lago Lemano – esposizione a sud
Pianta dell’appartamento – area colorata di grigio
Mappa
Vista panoramica sul Lago Lemano
Camera luminosa con vetrata
Ampio soggiorno e sala da pranzo con accesso al balcone
Cucina moderna e completamente attrezzata
Angolo cantina e cantine
Facciata dell’edificio – tranquillità e natura
Contattatemi per una prima consultazione !
